Casa para Recuperar na Impactante Aldeia de Xisto - Ferraria de São João
Preço: 99 000 €Casa para Recuperar na Impactante Aldeia de Xisto - Ferraria de São João
Especificações
- TipologiaT2
- Área útil103 m²
- Área do terreno968 m²
- Classe EnergéticaIsento
- Ano de construção1951
- TipoVenda
- AMI13365
- ConcelhoPenela
- FreguesiaCumeeira
- Id do anúncio44644862
- Id do anuncianteC0289-01909
Descrição
Casa para Recuperar na Impactante Aldeia de Xisto - Ferraria de São João
Descubra esta oportunidade única de adquirir uma casa para recuperar na Ferraria de São João, Penela, com uma área generosa de 159m² para reconstrução e 884 m2 de terreno. Este imóvel, tem potencial incrível para transformar em sua casa de sonho ou um investimento rentável na região de Coimbra.
As características originais da construção oferecem um charme especial que pode ser realçado com as suas ideias criativas.
Existem ainda duas situações a salientar. Pode-se fazer um destacamento de uma parte do terreno com possibilidade de construção. Confirmado pelo PDM da Câmara de Penela, pois o terreno tem duas frentes a confrontar com estrada.
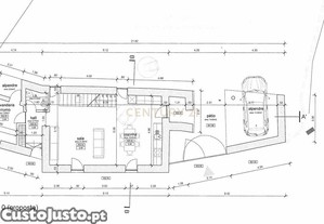
A segunda situação é a possibilidade de aproveitamento do projeto de reconstrução já existente (que consta nas fotografias).
Esta casa beneficia de um ambiente tranquilo, ideal para quem procura fugir da agitação da cidade, mas ainda assim estar perto de todos os serviços.
Aproveite esta oportunidade e venha visitar este imóvel!
Descubra esta oportunidade única de adquirir uma casa para recuperar na Ferraria de São João, Penela, com uma área generosa de 159m² para reconstrução e 884 m2 de terreno. Este imóvel, tem potencial incrível para transformar em sua casa de sonho ou um investimento rentável na região de Coimbra.
As características originais da construção oferecem um charme especial que pode ser realçado com as suas ideias criativas.
Existem ainda duas situações a salientar. Pode-se fazer um destacamento de uma parte do terreno com possibilidade de construção. Confirmado pelo PDM da Câmara de Penela, pois o terreno tem duas frentes a confrontar com estrada.
A segunda situação é a possibilidade de aproveitamento do projeto de reconstrução já existente (que consta nas fotografias).
Esta casa beneficia de um ambiente tranquilo, ideal para quem procura fugir da agitação da cidade, mas ainda assim estar perto de todos os serviços.
Aproveite esta oportunidade e venha visitar este imóvel!
C
PROCentury 21 - Investment
Anunciante desde Fev. 2018
Último acesso há mais de 15 dias
Último acesso há mais de 15 dias
Serviços adicionais
Verifique as melhores opções de crédito ou seguro para o seu caso.
Localização
Coimbra - Penela
C
PROCentury 21 - Investment
Anunciante desde Fev. 2018
Último acesso há mais de 15 dias
Último acesso há mais de 15 dias














