Terreno para construção T3 em Amor de 164,00 m²
Preço: 65 000 €Terreno para construção T3 em Amor de 164,00 m²
Especificações
- Área útil418 m²
- Área do terreno418 m²
- Classe EnergéticaIsento
- TipoVenda
- AMI11220
- ConcelhoLeiria
- FreguesiaAmor
- Id do anúncio44897938
- Id do anunciante1275128
Descrição
Terreno Projeto aprovado | Construçao | Amor | Leiria
Construa a sua moradia de sonho sem esperas nem burocracias!
Apresentamos este excelente terreno de 418 m², localizado na freguesia de Amor, a poucos minutos de Leiria.
A grande vantagem deste imóvel - Já possui projeto aprovado e licença pronta a levantamento, permitindo-lhe iniciar a construção da sua nova moradia de imediato!
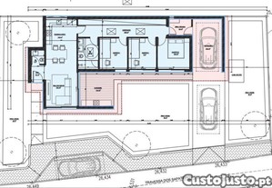
A Moradia (Projeto):
Trata-se de uma moradia individual de arquitetura moderna, com uma área bruta de construção de 164 m², desenhada para oferecer o máximo conforto e funcionalidade:
Zona Social:
Hall de entrada acolhedor que conduz a uma ampla sala de estar e jantar em Open Space, com varanda e muita luz natural, ligada a uma cozinha funcional.
Zona Privada:
Três quartos, roupeiro de apoio embutido.
Serviços e Exterior:
Zona técnica, garagem e uma área exterior coberta. O logradouro oferece o espaço ideal para criar um jardim privativo ou instalar uma piscina.
Foco na Eficiência e Tecnologia:
O projeto foi pensado para um desempenho energético superior e conforto acústico:
Climatização:
Pré-instalação de Ar Condicionado e Sistema de Ventilação Mecânica Controlada (VMC) de duplo fluxo.
Energia:
Painéis fotovoltaicos e bomba de calor de 300L para águas sanitárias.
Isolamentos:
Caixilharia em PVC oscilo-batente com corte térmico e vidro duplo, aliada a estores elétricos em alumínio.
Segurança:
Sistema de vídeo porteiro.
Localização e Envolvência: Situado em Amor, este terreno beneficia de uma excelente exposição solar e da tranquilidade de uma zona residencial, mantendo a proximidade a todos os serviços essenciais e aos acessos rápidos à cidade de Leiria.
Porquê este terreno?
Projeto moderno e otimizado.
Licença a levantamento (pode começar a construir).
Áreas equilibradas para fácil manutenção.
Não perca tempo com processos de licenciamento morosos.
Esta é a solução "chave na mão" para quem quer construir com rapidez e segurança.
Marque já a sua visita!
Valério Fonseca, Consultor Imobiliário Independente | IAD Portugal
#ref: 161009
Construa a sua moradia de sonho sem esperas nem burocracias!
Apresentamos este excelente terreno de 418 m², localizado na freguesia de Amor, a poucos minutos de Leiria.
A grande vantagem deste imóvel - Já possui projeto aprovado e licença pronta a levantamento, permitindo-lhe iniciar a construção da sua nova moradia de imediato!
A Moradia (Projeto):
Trata-se de uma moradia individual de arquitetura moderna, com uma área bruta de construção de 164 m², desenhada para oferecer o máximo conforto e funcionalidade:
Zona Social:
Hall de entrada acolhedor que conduz a uma ampla sala de estar e jantar em Open Space, com varanda e muita luz natural, ligada a uma cozinha funcional.
Zona Privada:
Três quartos, roupeiro de apoio embutido.
Serviços e Exterior:
Zona técnica, garagem e uma área exterior coberta. O logradouro oferece o espaço ideal para criar um jardim privativo ou instalar uma piscina.
Foco na Eficiência e Tecnologia:
O projeto foi pensado para um desempenho energético superior e conforto acústico:
Climatização:
Pré-instalação de Ar Condicionado e Sistema de Ventilação Mecânica Controlada (VMC) de duplo fluxo.
Energia:
Painéis fotovoltaicos e bomba de calor de 300L para águas sanitárias.
Isolamentos:
Caixilharia em PVC oscilo-batente com corte térmico e vidro duplo, aliada a estores elétricos em alumínio.
Segurança:
Sistema de vídeo porteiro.
Localização e Envolvência: Situado em Amor, este terreno beneficia de uma excelente exposição solar e da tranquilidade de uma zona residencial, mantendo a proximidade a todos os serviços essenciais e aos acessos rápidos à cidade de Leiria.
Porquê este terreno?
Projeto moderno e otimizado.
Licença a levantamento (pode começar a construir).
Áreas equilibradas para fácil manutenção.
Não perca tempo com processos de licenciamento morosos.
Esta é a solução "chave na mão" para quem quer construir com rapidez e segurança.
Marque já a sua visita!
Valério Fonseca, Consultor Imobiliário Independente | IAD Portugal
#ref: 161009
Serviços adicionais
Verifique as melhores opções de crédito ou seguro para o seu caso.
Localização
Leiria - Leiria - Amor
IAD Portugal
Anunciante desde Nov. 2020




